Neues Sportzentrum kostet min. 8 Millionen Euro
Endlich kommt Bewegung in das Projekt! Im Rahmen der Erweiterung der Findorff-Grundschule muss in Neudorf-Platendorf ein neues Sportzentrum hinter der bestehenden Thomas-Kita gebaut werden. Eine erste optimistische Kostenschätzung der Gemeindeverwaltung geht dafür von Kosten im Bereich von mindestens 8 Millionen Euro aus.
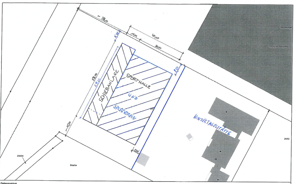
Auf einer Nutzfläche von insgesamt min. 2.230 Quadratmetern sollen entstehen:
- 1-Feld-Sporthalle mit Umkleiden, Duschen, Mehrzweckraum und Geräteräumen
- Sportheim des TuS Neudorf-Platendorf mit Gemeinschaftsraum, Küche und Nebenräumen
- Gemeinschafträume und Schießanlage des Schützenvereins
Im ersten Schritt soll eine Interessenbekundung für das Förderprogramm zur "Sanierung von kommunalen Sportstätten" des Bundes abgegeben werden. Erst nach positivem Vorentscheid kann der eigentliche Förderantrag gestellt werden.
Die Förderung beläuft sich auf 45 Prozent der zuwendungsfähigen Kosten, bei Kommunen mit Haushaltsnotlage bis zu 75 Prozent. Die Gemeinde Sassenburg zählt dazu aktuell noch nicht, könnte aber mit dem Haushalt 2026 in die Haushaltskonsolidierung rutschen. Eine Verknüpfung mit anderen, zusätzlichen Förderprogrammen ist möglich. Der Eigenanteil der Gemeinde muss jedoch mindestens 10 Prozent betragen. Klar ist, dass wie beim Bau des Sportzentrums in Westerbeck, die örtlichen Vereine finanziell unterstützt werden müssen. Dazu steht unsere B.I.G.-Fraktion!
Bildnachweis © B.I.G.-Sassenburg
