Baugebiet "Am Holzplatz" in Triangel: Wie geht es weiter?
Wie geht es mit dem neuen Baugebiet "Am Holzplatz" in Triangel weiter? Das sollen der Triangeler Ortsrat und der Bau- und Umweltausschuss in einer gemeinsamen öffentlichen Sitzung am Dienstag, den 28. April 2020 um 18 Uhr in der Sport- und Freizeitstätte entscheiden.
Teilnehmerzahl begrenzt
Aufgrund der Restriktionen zum Schutz gegen eine Infektion mit dem "Corona-Virus" dürfen auf Weisung der Gemeindeverwaltung nur maximal 18 Zuhörer die Sitzung verfolgen. Zuhörer müssen sich für eine Teilnahme telefonisch in der Gemeindeverwaltung eine "Eintrittskarte" reservieren.
Das Verfahren hinterlässt Zweifel, ob durch das Reservierungsverfahren die erforderliche Öffentlichkeit hergestellt wird, falls mehr Bürger Interesse an der Teilnahme der Sitzung haben. Es hätte schließlich ein anderer Sitzungsort gewählt werden können, in dem unter Einhaltung der Abstandsregslungen mehr Zuhörer teilnehmen hätten könnten. Auf jeden Fall ist das Verfahren geeignet, umstrittene Pläne unter einer geringen öffentlichen Wahrnehmung zu beschließen.
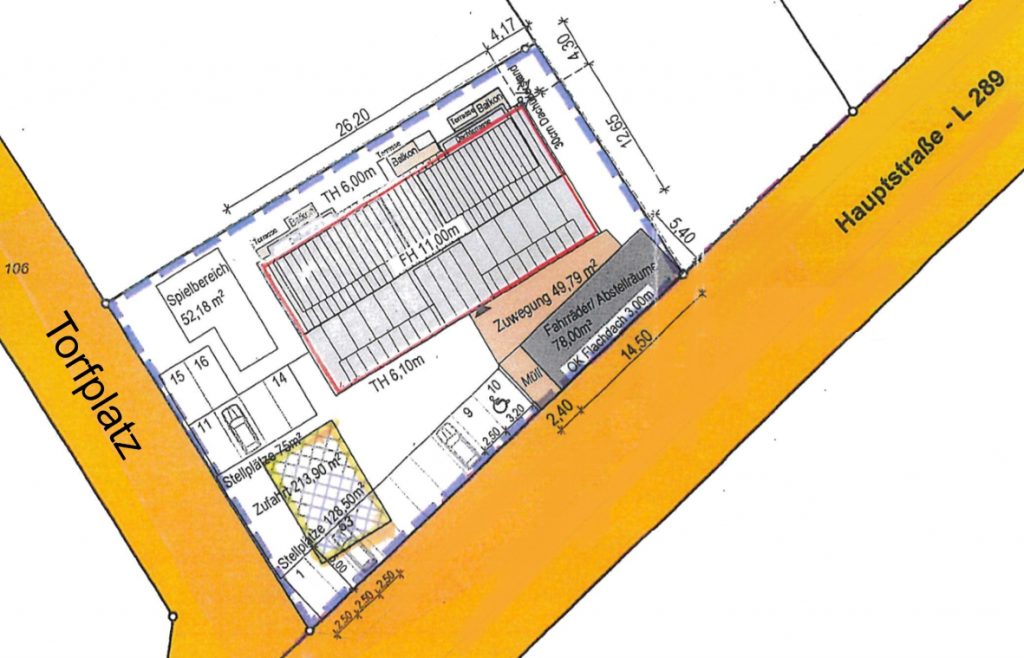
Beratungen wieder auf Vorschlag eines Investors
Obwohl in der Sitzung des Bauausschusses im Oktober 2019 vereinbart wurde, die Festsetzungen des Bebauungsplanes wegen schlechter Sitzungsvorbereitung der Mitglieder aus der SPD/CDU-Mehrheitsgruppe erneut in den Fraktion zu beraten, zaubert jetzt die Verwaltung ohne jegliche politische Beauftragung fertige Pläne (Beitragsbild) aus dem Hut.
Wieder soll die Politik von den Vorgaben eines Investors geleitet werden, ohne selbst von Anfang an die Rahmenbedingungen eigenständig festzusetzen. Auf Vorschlag der Gemeindeverwaltung sollen große zweigeschossige Wohnblöcke mit Flachdach und mit einer hohen Bebauungs- und Flächenversiegelungsqoute genehmigt werden. Fügen sich solche Objekte in ein dörfliches Ortsbild ein? Hat der Bürgermeister schon einen Deal gemacht?
Viel mehr entscheidend ist noch, welche Nutzung entsprechend dem Bedarf festgelegt werden soll. Bisher geplantes "Senioren-Wohnen" entpuppte sich bei genauem Hinsehen als Bauten mit normalen zeitgemäßen (barrierefreien) Wohnungen - nur anders verpackt.
Erweiterung der Tagesordnung
Unsere Fraktion wird die Erweiterung der Tagesordnung zur öffentlichen Beratung einer erforderlichen gemeindlichen Zustimmung zu einem Bauantrag für ein Mehrfamilienhaus mit 8 Wohneinheiten und 16 Stellplätzen in Westerbeck beantragen.
Wir sehen die grundsätzliche Notwendigkeit, große ortsbildprägende Bauvorhaben mit einer hohen Flächenversiegelung von 73% transparent und öffentlich in den politischen Gremien zu beraten.

Bildnachweis: Screenshot von Planungsunterlagen der Gemeinde Sassenburg

